Grovenor Sidings, Railway Modelling Pages by Keith Norgrove
Home Page,   Garratts

General Electric U20C - Modelling Project

This page is intended to document my project to model one of the U20C engines that were the mainstay of Zambia Railways when I worked on the line in the 70s and 80s.

The project is going to show conversion of a Frateschi model of a South African U20C from 00 to the correct 14mm track gauge, although sold as H0 these locos are actually to 4mm scale.

To lay the ground I'll start with some pictures of the real thing to show the intent.

Most of the pics are of the first series, 'long nose U20s', at the end are a couple of pics of the second series 'short nose' version I will be modelling.  KN 18/8/08

U20 on Congo train at Ndola

Freight looped on the Kafue hill

Train running through.

U20 and Signal Engineer's Landrover

U20C

U20C

U20C 0-017

U20C at Kabwe

U20Cs at Bwana-Mkubwa

U20C

U20C

U15C locos at Lusaka

Second series loco on passenger train.

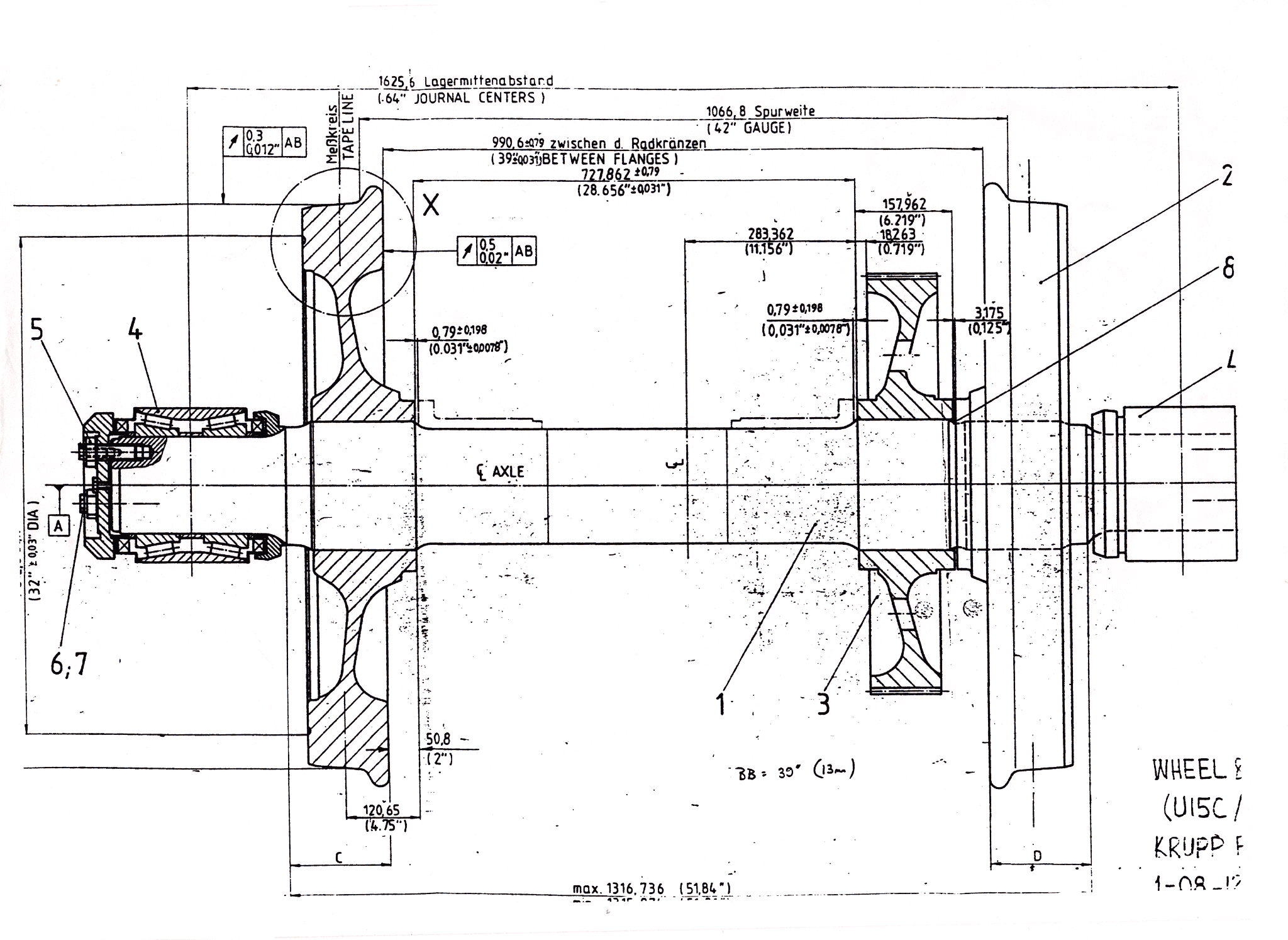
The official diagrams are here, click on the image to get a high resolution version if you want to print them. The U20 diagram is the long nose version , to get the short nose version you need to take the relevant bits from the U15 diagram.
U20C Diagram

U15C Diagram


OK Now its time to start in on the model, first a couple of pics more or less out of the box. Actually I had removed a couple of wheelsets and turned one pair of wheels to size as will be shown below.

Frateschi SAR model as supplied

Frateschi SAR model as supplied

Frateschi SAR model as supplied

This whole project hinges on the ability to convert the wheelsets to 14mm gauge and finescale so the first task was to dismantle enough to get a couple of wheels out and onto the lathe. The chassis has a drive shaft missing as I just replaced the bogie with missing wheels to take the photos above.

Chassis

The first pair of turned wheels are pushed onto a temporary wooden axle for these comparison shots. (I don't want to re-assemble them onto the plastic geared axles until final assembly to avoid the wheels becoming loose). The first pic shows the clearance available over the gearbox for the 14 mm wheelset at 12.7 mm back to back. (The first pair of wheels have no axle).  The second pic shows the turned wheelset and one made up with the unaltered wheels at original back to back, sitting on a 14mm gauge turnout.

turned wheelset showing clearances to bogie frame.

Wheelsets on turnout.

Next task is to get stuck in and turn up the remaining 10 wheels as a batch. I'll show the sequence used as I go through that process.  KN 21/8/08

First thing is to set the lathe up.
Unimat lathe
As the wheels have hollow stub axles with rather a thin tube i first turned up a plug to fit closely within the bore to support the axle when holding in the chuck, the first wheel is then chucked by the stub axle for step one, reducing the flange depth. The pictures show before and after. All steps are repeated for the 10 remaining wheels.

Ready to start

Step 1 complete

For step 2 the wheel has to be reversed in the chuck to reduce the flange width by facing off the back face of the wheel, again before and after pictures.
Ready for step 2

Step 2 almost complete

Here step 2 is completed for all 10 wheels, also shown is the plug used to support the stub axle and the first wheelset completed as a trial run.
Wheels after stage 2

Step 3 is to bring the overall wheel width down to scale by turning 0.5mm off the front face. For this the wheels are held on the stub axles again.
Ready for step 3

Step 3 done

These steps leave a square cornered flange that just needs smoothing and rounding off a little, to do this I use a needle file gently and carefully. Its not possible to access the flange with the file with the wheel in the 3 jaw chuck so it is swopped for the drill chuck to carry out this action.
Step 4, using drill chuck to give rom for file.

Step 5 is the finish, to shorten the stub axle so that I will get the correct back to back when the wheels are refitted to the geared axles. I needed to reduce it to be 3mm from the back of the wheel. Just over 1mm to remove. A file was used to deburr the end after turning.
Step 5 start

Step 5, turned ready to deburr.

So, after the second session I have 12 wheels ready to reassemble.
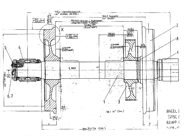
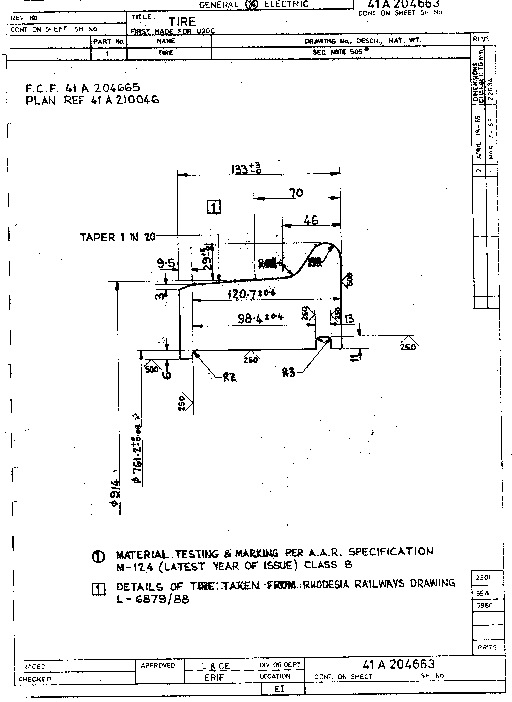
Here are the drawings to show what I was aiming for! Not all that close really <g>
U20/U15 wheelset

U20/U15 wheel tyre

 Next session will tackle the gearbox.  KN 23/8/2008

The primary task on the gearbox is to thin down the bearing bosses for the outer wheelsets so that the overall width is 11mm, or 5.5mm for each half of the box. This means taking 1mm off each side.
At first I tried filing them down, even with a fairly coarse file this was hard work, the slippery plastic does not like being filed. When I got to the second half of the box, which has the internal gear axles protruding, it was clear that the filing technique risked damaging the axles. Having second thoughts I fitted a new blade to my scalpel and tried slicing the plastic off, this turned out to be easy and much quicker and was used for the remaining 3 half boxes. With that done all that remained was to re-assemble, removing the bogie mounted couplers in the process.


original and modified half boxes

left and right half boxes showing vulnerable internal axles

original and modified half boxes showing extent of slimming

internal gears refitted

and clipped together


Gearbox with wheels fitted

Then pickups and outside frames added to complete the bogie

Fitting the pickups was a novel experience, usually when rewheeling 00 locos to P4 its a struggle to bend the pickups out to reach, here the bend had to be reduced to fit them in the narrower gap behind the wheels. If experience shows it to be needed it will be simple to add another wiper for the centre axle.
The bogie was refitted to the frame before repeating all these steps for the other bogie.

First bogie refitted


Completed chassis

and bottom view

With the body on its ready to start the cosmetic work, apart from painting the main issues are the couplers and pilots, and relocate the horns. But at least its now running on the correct track gauge as can be seen here. At this time I have not made any attempt to reduce the overall bogie width, the outside frame holds the gearbox together and any change would have to be carefully thought through. The axlebox centres as shown in the drawing above are 64" so the width over axlebox ends should be close to 76", or just over 25mm to scale. The frame actually measures 27.5 so making the change would be worthwhile and will go on the 'think about it' list.











Next item to tackle is the gaping holes in the pilots where the bogie mounted couplers fit through,
Original coupler

also the ZR pilot has a different style at the bottom edge.
First item was to establish the coupler height. Reference to the drawings shows that the couplers have a centre height 2' 11" above rail, while the footplate is at 4' 10". After verifying that the footplate height was correct and checked the depth of a Kadee coupler box the height for the top of the coupler box was marked on the pilots. Conveniently this put the bottom of the coupler box in line with the top of the existing hole, which meant that simple rectangular plasticard fillers could be used.
coupler height marking
Before continueing two preparatory actions were taken, first the chassis ends were notched to allow space for the body mounted coupler pads. These notches can be identical at each end.
Chassis notch
Next a coupler height gauge for the Kadee couplers was made up, a simple construction in plasticard with a Kadee 5 fitted, the standard Kadee gauge cannot be used as it will not fit the gauge and the coupler height is set to 3.5mm scale not 4mm scale.
Coupler gauge
Coupler gauge
Now we can get on with fitting the couplers and filling the pilots. First I build up a coupler pad from layers of plasticard at the back of each pilot.
Coupler pad.
Then with the pad in place the slots for the coupler pockets are cut and filed to a neat fit on the coupler boxes. I used No.6 couplers for this as the boxes are short hence did not need an excessive notch in the chassis ends.
Coupler box slot

Coupler box slot.

Coupler pad
The coupler pads are allowed to dry out then drilled and tapped to fit the couplers. I use Kadee taps and nylon screws. With the couplers in place plasticard rectangles are cut tofill the remaining holes in the pilot and a narrow strip filled horizontally at the base to reduce the rail clearance and provide a base for the sloping section at the bottom of the pilot. The existing central section on the front pilot needs to be filed back ready for future fitting of this sloping section which is full width on the ZR locos.
Coupler in place.

Rear end pilot
NB. during a spare moment at this time I unclipped the cab to check that the glazing can be removed for painting. No problem, its a simple clip fit.
front end pilot

Rear end Pilot

Front end pilot
Finally the couplers are checked for height.
Checking coupler height.

OK after a slight excursion to assemble a bit more track so I have something appropriate to stand it on.
Track
The next step was to complete the lower section of the pilots. Also I have made a start on hiding that South African orange paint.
Pilot lower edge

Pilot lower edge

Pilot lower edge
Paint doesn't look to good on the nose so will need a rub down before the next coat.

October 26th. Recovered a bit of time and enthusiasm and  started on the lights.
The headlights have an LED waving in the air behind them which is a bit hit and miss as to how much of its output reaches the light pipes, and at the cab end a lot of this light fills the cab. The tail lights are just moulded on, so also need to be considered.

Original LED arrangement
My memory of these locos is that headlights were always lit when running but I don't have any recollection of ever seeing the tail lights in use although the lenses do show red. So my aim is to improve the headlights and just represent the tail lights by painting the lenses red. This will allow use of a decoder with just the stadard front and rear lamp functions. To get an LED close up behind each light pipe for the twin sealed beam headlamps I will use a pair of surface mount LEDs at each end. The spacing required allows these to be assembled on a small piece of stripboard with a 560 Ohm resistor in series. The two LED assemblies were built and tested with the decoder before boxing them in behind the light pipes.
LEDs
This shows the LEDs series connected with spacing to match the headlight/windscreen moulding.
And below the PCB trimmed to size ready to fit. Two of these light boards were assembled.
LEds
Here the first light unit has been held in place with a bit of bluetack then boxed in with two strips of styrene.
LEDs
gg
LEDs
The result when powered up, note the start made fitting the MU cable cover as well.

Boxing in the other LED assembly in the cab roof involved a bit more work including some black paint on the light pipes to minimise spillage into the cab, a bit still leaks out but it looks worse in the photos than for real.
Cab boxing
Thhe loose cab above then fitted to the body below.
Cab boxing
With both sets of lights in place its time to fit the decoder and assemble everything. However while its in bits I decided to complete the work on narrow gauging the bogies by reducing the frame width to the prototype dimension as discussed above.
The one piece bogie frames are held in place by two pins each side that clip into recesses in the gearbox sides, small fillets on top of these pins hold the current pick ups in place. The frames need to be narrowed by 2.5mm so each of the 4 pins needs to be shortened by 1.25 mm, the retaining fillets similarly cut back and 2.5mm removed from each frame end transom. Luckily there is enough meat in these transoms to rejoin them with a brass joiner bolted in place with 12BA bolts.
Original bogie frame with joiner
--
Frame halves
  --
completed frame
--
Completed bogie
Then it just remains to do the same to the second one and re-assemble the loco. The following pictures show the various stages in creating plasticard supports for the decoder.

decoder
First a new motor top plate instead of the original circuit board.

decoder
Then a support for the speaker.

decoder
and a support for the decoder.

decoder
A couple of bits of stripboard to join the pickup wires.

decoder
Replace the speaker.

decoder
and the decoder.

decoder
Then connect all the wires, including those from the lights ready to clip the body back on.


At this point I took time out to lay the track on a test board, replacing the track on a board previously used for a P87 demo.
Just the one turnout and three lengths of track to allow for shunting up and down.
NB. A prototypical train for one of these locos would be 6 metres long to scale and fit comfortably in the 9 metre loops designed to fit the load for a 20th class Garratt
Test track ready to use.

The track was laid by my usual technique, glueing track and ballast in one operation.
See 'Shed relay' here for details.

Test track with loco

Return to homepage.

Copyright Keith Norgrove.
Last revised: November 21st 2008